︎
MICHAEL FRANCIS CARAGLIO
︎
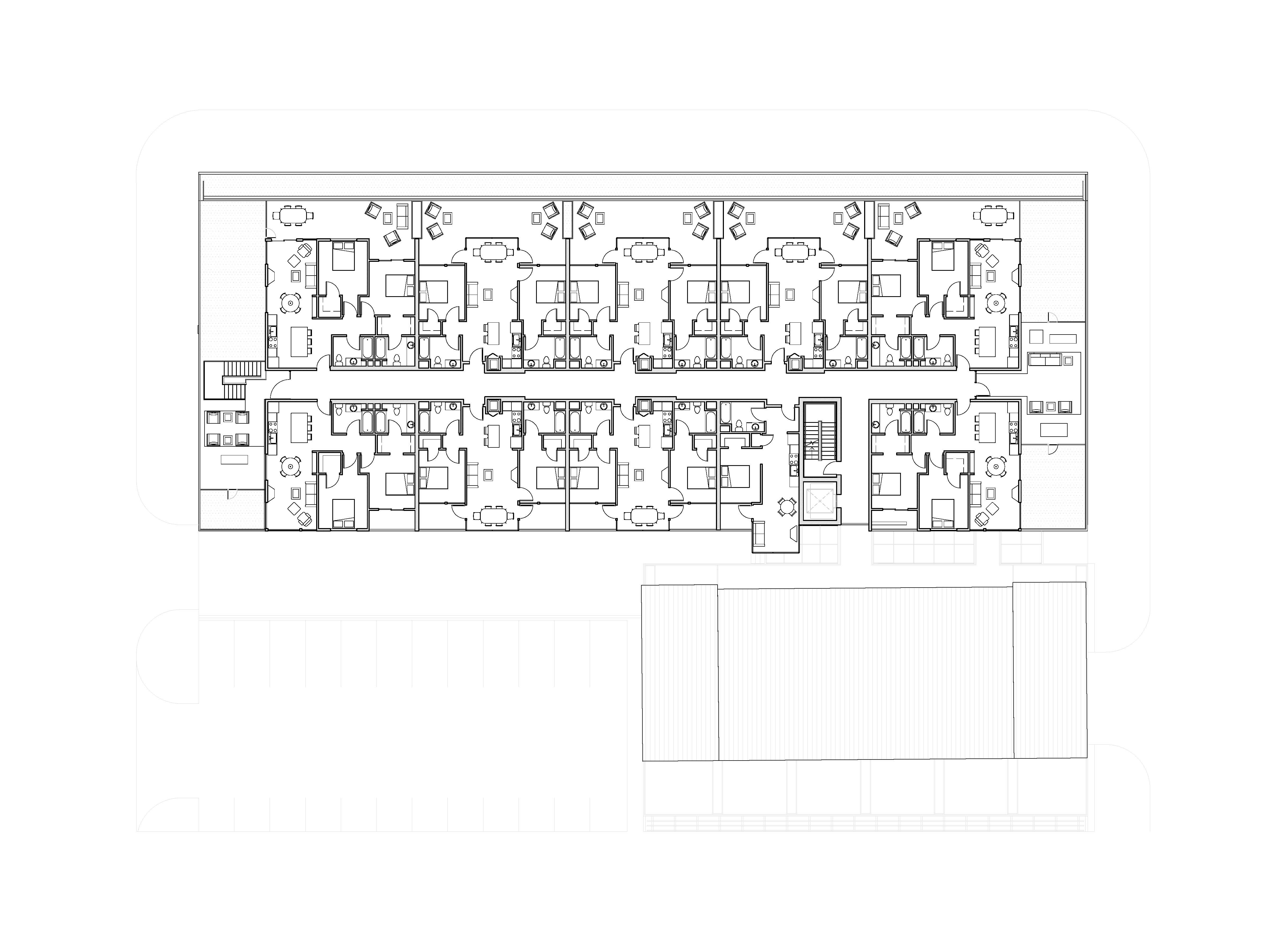
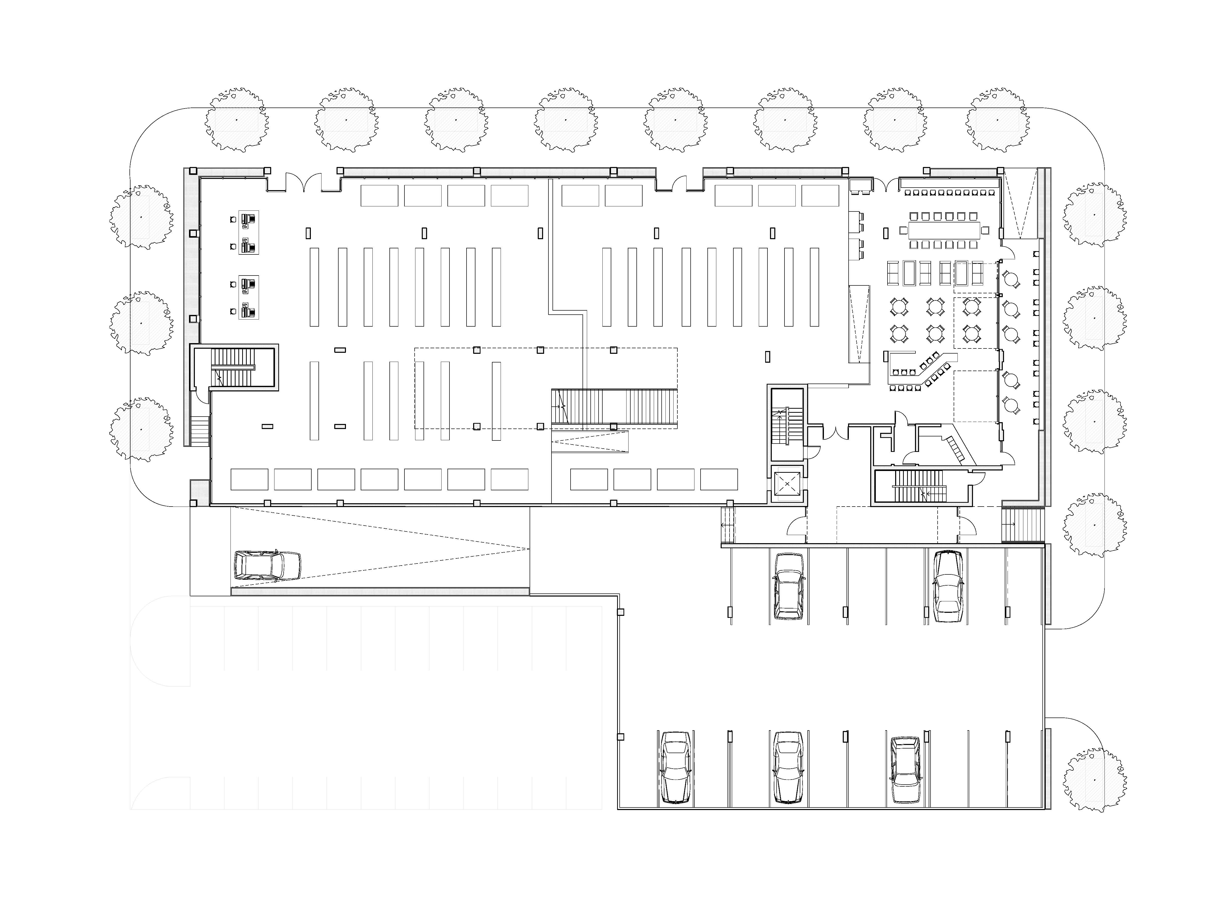
INFORMATION
5
TH
AVENUE MIXED USE
Program: Housing, Office, Commercial
Location: San Diego, CA
Year: 2018
w/ TannerHecht Architecture