︎
MICHAEL FRANCIS CARAGLIO
︎
INFORMATION
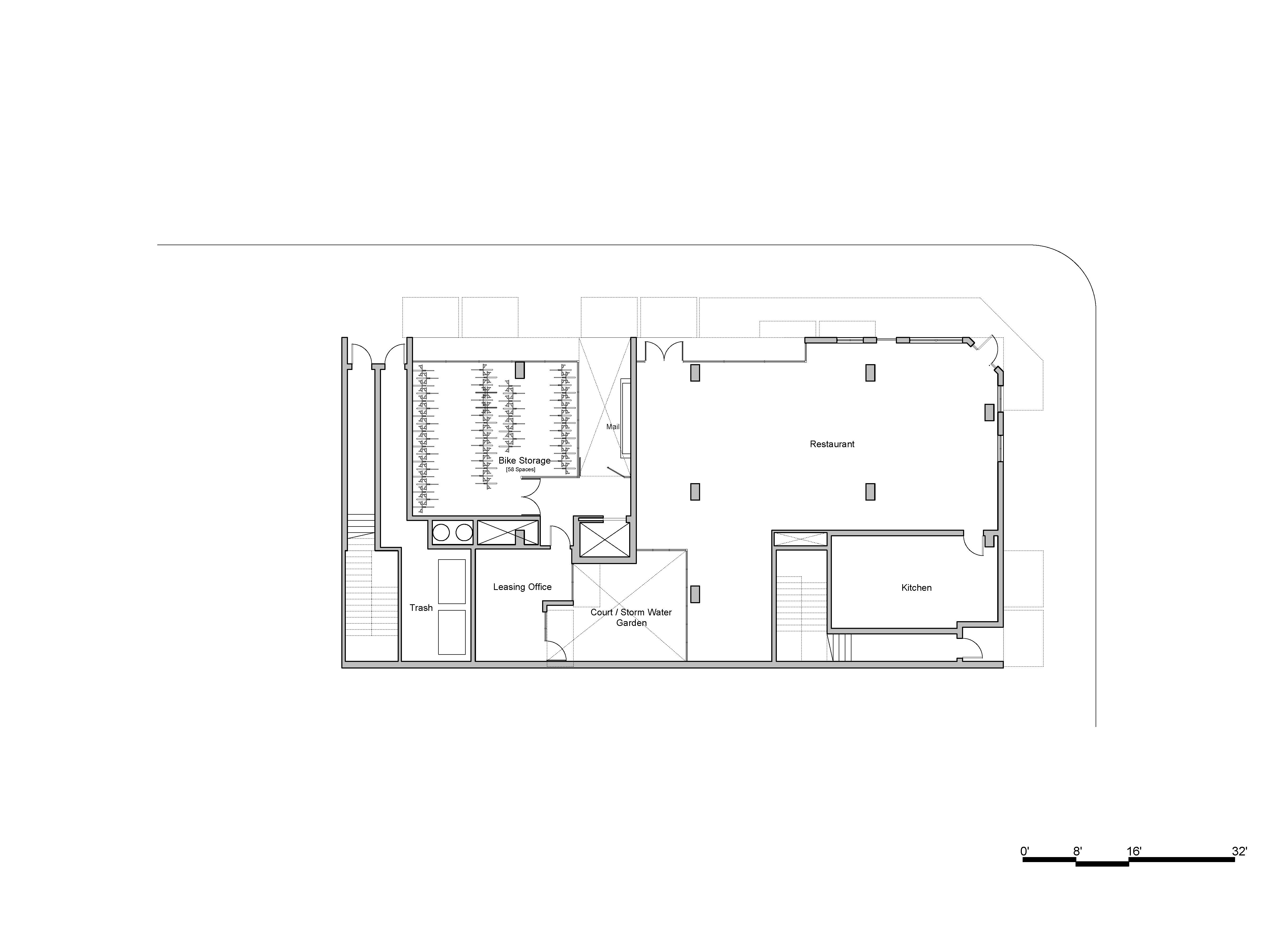
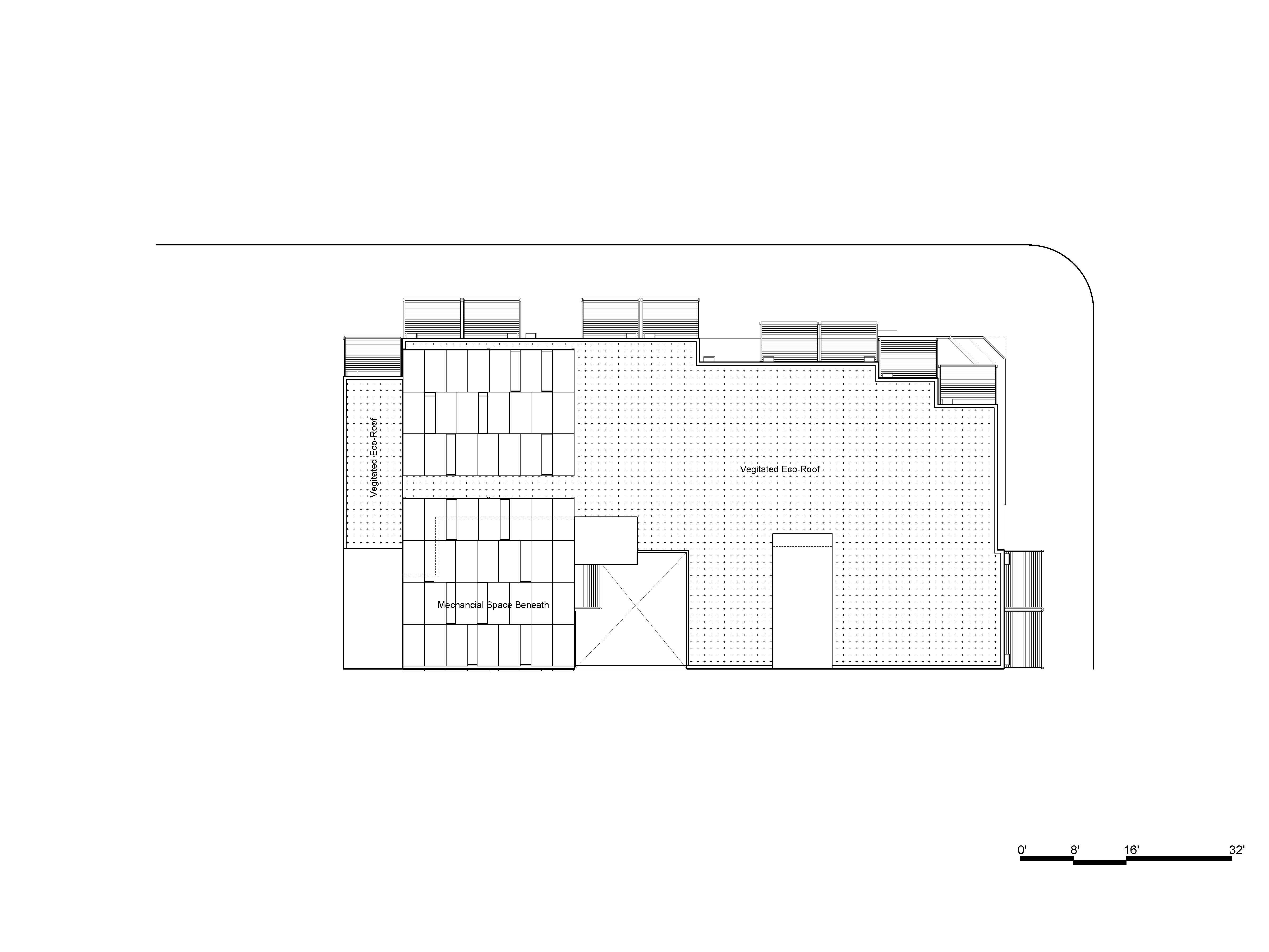
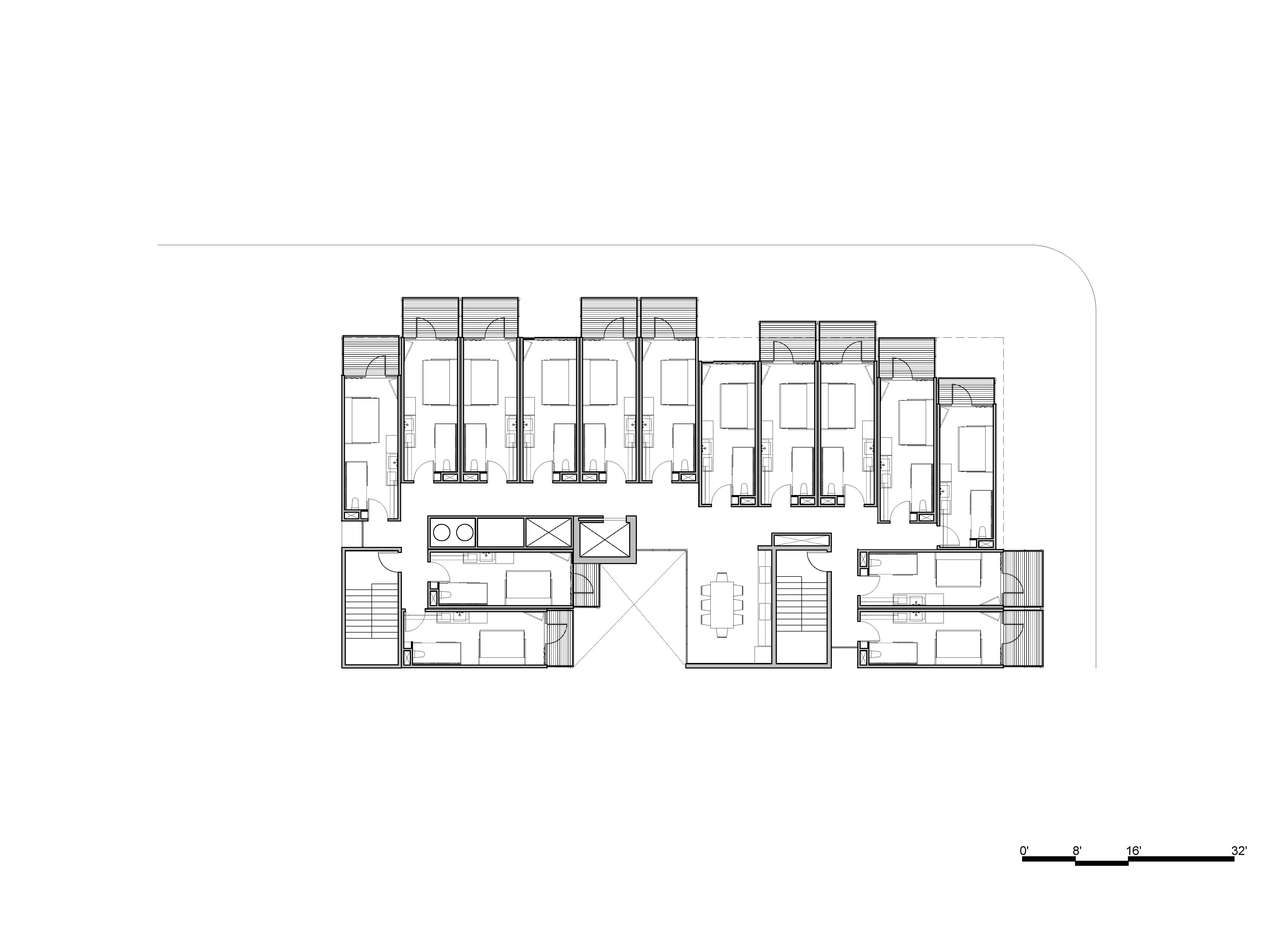
MODULAR MICRO HOUSING
Program: Modular Housing
Location: San Diego, CA
Year: 2018
w/ TannerHecht Architecture